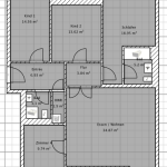
Der Grundriss

Uns wurde relativ schnell klar, welche Wohnung von den fast 100 angebotenen wir haben wollten — hier spielten vor allem Größe, Ausrichtung und nicht zuletzt der Preis eine Rolle (denn wir wollten bei um die 300.000 Euro rauskommen).
Auch bei unserem ersten Gespräch mit Herrn Dietrich, dem Verkäufer von Budiro, kam dieser nach unseren vorher mitgeteilten Wünschen zur selben Schlussfolgerung: Die Wohnung 2.02 sollte es sein.

Dabei handelte es sich um eine 4-Zimmer-Wohnung mit separater Küche, die sich mit relativ wenig Änderungen in eine 5-Zimmer-Wohnung mit Wohnküche umwandeln ließ, da sie über ein großzügiges Wohnzimmer verfügte — für uns perfekt.
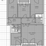
Nun hatten wir leider unsere Rechnung ohne den Bauträger und Architekten gemacht: Der Bedarf an großen Wohnungen war größer als geschätzt, alle Stockwerke über uns wurden nochmal verändert — und damit auch die Stränge, die sich unmittelbar auf unseren Grundriss auswirkten.

Das gab zum Teil abenteuerliche Variationen des Grundrisses, die das komplette Wohnzimmer zerstört hätten.
Das war ein Punkt, an dem wir der Verzweiflung nahe waren nach dem Motto: “Das war bisher die perfekte Wohnung, und nun geht das Ganze direkt wieder den Bach runter”.
Nun muss man der Fairness halber auch sagen, dass sich das Ganze noch vor dem offiziellen Verkaufsstart des Projekts abspielte und somit sicher noch viele Abstimmungen zwischen Bauträger, Architekt und Verkauf nötig waren. Das änderte aber nichts an unserer schlechten Laune — wir machten auch sehr deutlich, dass der Grundriss so für uns eine sehr schwer zu schluckende Kröte wäre (wenn wir sie denn schlucken würden, wir richteten uns nämlich innerlich schon darauf ein, diese ganze Scheiße mit dem Kaufen sein zu lassen und einfach weiter zur Miete zu wohnen, weil wir die Schnauze voll hatten).
Zum Glück kam zwei Wochen später die gute Nachricht, dass ein neuer Grundriss vorhanden sei, mit dem wir uns dann auch gut anfreunden konnten.
Kleinere Änderungen nahmen wir noch vor: Weg mit dem blöden Masterbad, das nur vom Schlafzimmer aus zugänglich ist (wer will sowas?), her mit einem Stück mehr Flur.
Der Zugang zum sehr engen Hauswirtschaftsraum (HWR) wird nicht vom Flur, sondern vom kleinen Bad aus über eine Falttür erfolgen. Dadurch gewinnt man eine Ecke, in die man zumindest etwas reinstellen kann. (Eine, wie ich finde, grandiose Idee meiner Schwiegermutter.)
Weitere kleine Änderungen werden wir noch bis Ende Januar vornehmen können — dann ist das Ding fest und jede Änderung wird uns was kosten, wenn wir Pech haben. Das will also alles wohlüberlegt sein.




Leave a Reply